nieruchomości
Wypełnij formularz i kliknij SZUKAJ poniżej

Numer oferty
 
 
Lokalizacja
Ulica
Cena
Powierzchnia
Liczba pokoi
oferty specjalne

Notes » Zgłoś ofertę » Kalkulator opłat » Katalogi projektowe » PRZETARG » Kontakt »

Szczegóły Oferty

lokal biurowy ( sprzedaż )

78/1333/OLS

Numer:
78/1333/OLS
Miasto:
KIELCE, CENTRUM
Ulica:
Zagórska
Cena:
388 000 PLN kalkulator
Cena za mkw:
7 054,55 PLN mkw
Powierzchnia:
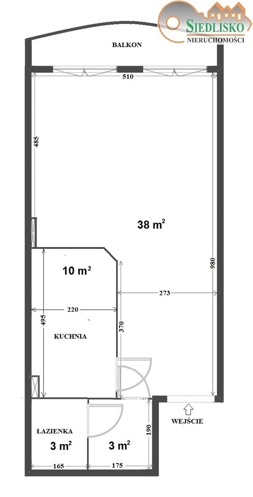
54.55 m2
Liczba pokoi:
4
Piętro:
2
Liczba pięter:
4
Rok budowy:
2009
Droga dojazdowa:
asfaltowa
Winda:
TAK

Opis

Sprzedamy lokal położony w centrum Kielc przy ul. Zagórskiej 24- w sąsiedztwie targowiska miejskiego, w pobliżu głównych szlaków komunikacyjnych i przystanków komunikacji zbiorowej Kielc. Powierzchnia 54,55 m kw obejmuje pomieszczenie główne - otwartą przestrzeń - do indywidualnej aranżacji oraz zaplecze socjalne kuchnię, biuro i łazienkę. Z pomieszczenia głównego mamy wyjście na duży wyeksponowany balkon z widokiem na ulicę. Lokal wyposażony w instalację elektryczną, wodno-kanalizacyjną, centralnego ogrzewania i gazową. Ogrzewanie indywidualne - piec gazowy dwu-funkcyjny. Czynsz administracyjny - 340 zł/m-c.
Lokal usytuowany jest na 2 piętrze budynku mieszkalno-usługowego, oddanego do użytku w 2009 roku, wyposażonego w windę.
W budynku przeważają lokale usługowych m.in. z branży medycznej, prawnej i kosmetycznej, na parterze zarówno w budynku jak i w sąsiedztwie prowadzona jest działalność handlowo-usługowa. Ulica Zagórska jest ulicą o dużym natężeniu ruchu zarówno kołowego jak i pieszego, a propozycję zakupu lokalu kierujemy do osób poszukujących atrakcyjnego miejsca dla swojego biznesu.
Stan prawny uregulowany. Cena 388.000 zł - do negocjacji, lokal dostępny zaraz po sprzedaży.
Zapraszamy do bliższego zapoznania się z przedmiotową nieruchomością - szczegóły do uzyskania po kontakcie telefonicznym kom. 603 413 413 -Barbara Stańczyk.



Informacje dotyczące opisu nieruchomości podane są przez właściciela, mają charakter wyłącznie informacyjny i mogą podlegać aktualizacji. Oferta dotycząca nieruchomości stanowi zaproszenie do rokowań zgodnie z art. 71 Kodeksu Cywilnego i nie stanowi oferty określonej w art. 66 i następnych KC.
Barbara Stańczyk
Nr licencji pośrednika odpowiedzialnego zawodowo: 1929
tel: 603413413
email: biuro@siedliskokielce.pl

 
SIEDLISKO Nieruchomości Barbara Stańczyk
ul. Zalesie 55
25-825 Kielce
tel.: +48 603 413 413
email: biuro@siedliskokielce.pl
Wyślij ofertę na e-mail

Jeśli chcesz dostać tą ofertę w e-mailu,
podaj swój adres.
 
 

Prześlij wiadomość do naszej firmy
Imię i Nazwisko 
Telefon 
E-mail 
Treść zapytania 

Wyrażam zgodę na przetwarzanie moich danych osobowych przez firmę SIEDLISKO Nieruchomości Barbara Stańczyk dla celów związanych z działalnością pośrednictwa w obrocie nieruchomościami, jednocześnie potwierdzam, iż zostałem poinformowany o tym, iż będę posiadać dostęp do treści swoich danych do ich edycji lub usunięcia.