nieruchomości
Wypełnij formularz i kliknij SZUKAJ poniżej

Numer oferty
 
 
Lokalizacja
Ulica
Cena
Powierzchnia
Liczba pokoi
oferty specjalne

Notes » Zgłoś ofertę » Kalkulator opłat » Katalogi projektowe » PRZETARG » Kontakt »

Szczegóły Oferty

mieszkanie ( sprzedaż )

983/1333/OMS

Numer:
983/1333/OMS
Miasto:
KIELCE, CENTRUM
Ulica:
Zagórska
Cena:
388 000 PLN kalkulator
Cena za mkw:
7 112,74 PLN mkw
Powierzchnia:
54.55 m2
Liczba pokoi:
1
Piętro:
2
Liczba pięter:
3
Rok budowy:
2009
Droga dojazdowa:
asfaltowa
Balkon:
TAK
Winda:
TAK

Opis

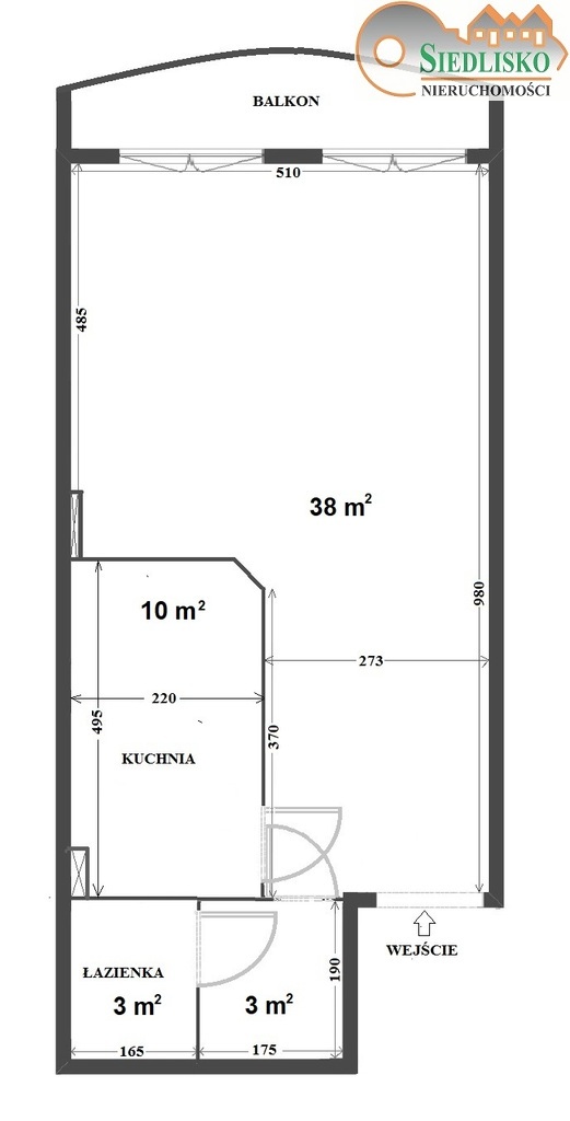
Sprzedamy mieszkanie położone w centrum Kielc przy ul. Zagórskiej 24 - w sąsiedztwie targowiska miejskiego, w pobliżu głównych szlaków komunikacyjnych i przystanków komunikacji zbiorowej Kielc. Powierzchnia 54,55 m kw obejmuje pomieszczenie główne - otwartą przestrzeń - z możliwością indywidualnej aranżacji oraz kuchnię, łazienkę, toaletę i hol. Z pomieszczenia głównego mamy wyjście na duży wyeksponowany balkon z widokiem na ulicę i inne budynki. Lokal wyposażony w instalację elektryczną, wodno-kanalizacyjną, centralnego ogrzewania i gazową. Ogrzewanie indywidualne - piec gazowy dwu-funkcyjny.
Mieszkanie usytuowane jest na 2 piętrze budynku mieszkalno-usługowego, oddanego do użytku w 2009 roku, wyposażonego w windę.
W budynku znajdują się lokale mieszkalne jak i usługowe m.in. z branży medycznej, prawnej i kosmetycznej.
Stan prawny uregulowany. Cena 388.000 zł podlega negocjacji. Miesięczny czynsz administracyjny obecnie wynosi 340 zł. Lokal ze względu na lokalizację i parametry (wys. 3 m) może być wykorzystane do prowadzenia działalności usługowej typu biuro, gabinet, itp.. Mieszkanie wolne, dostępne zaraz po sprzedaży.
Zapraszamy do bliższego zapoznania się z przedmiotową nieruchomością - szczegóły do uzyskania po kontakcie telefonicznym kom. 603 413 413 -Barbara Stańczyk.



Informacje dotyczące opisu nieruchomości podane są przez właściciela, mają charakter wyłącznie informacyjny i mogą podlegać aktualizacji. Oferta dotycząca nieruchomości stanowi zaproszenie do rokowań zgodnie z art. 71 Kodeksu Cywilnego i nie stanowi oferty określonej w art. 66 i następnych KC.
Barbara Stańczyk
Nr licencji pośrednika odpowiedzialnego zawodowo: 1929
tel: 603413413
email: biuro@siedliskokielce.pl

 
SIEDLISKO Nieruchomości Barbara Stańczyk
ul. Zalesie 55
25-825 Kielce
tel.: +48 603 413 413
email: biuro@siedliskokielce.pl
Wyślij ofertę na e-mail

Jeśli chcesz dostać tą ofertę w e-mailu,
podaj swój adres.
 
 

Prześlij wiadomość do naszej firmy
Imię i Nazwisko 
Telefon 
E-mail 
Treść zapytania 

Wyrażam zgodę na przetwarzanie moich danych osobowych przez firmę SIEDLISKO Nieruchomości Barbara Stańczyk dla celów związanych z działalnością pośrednictwa w obrocie nieruchomościami, jednocześnie potwierdzam, iż zostałem poinformowany o tym, iż będę posiadać dostęp do treści swoich danych do ich edycji lub usunięcia.